产品展示
/ Products Classification 点击展开+详细介绍
一、LD-FB-1100型双节琴台柜特点
LD-FB-1100型双节琴台柜与单节琴台柜功能及外形相同。面板空间为单节琴台柜的两倍,可安装的控制盘也为单节的两倍。可根据工程需要灵活配置各种控制盘,还可安装CRT彩色显示系统。必要时,可与其它类型琴台柜组合使用,而且外形美观,易于操作。琴台柜底板上开有进线孔,并配有橡胶垫,穿线时将线穿过橡胶垫,以便起到密封、防水、防鼠的作用。
二、LD-FB-1100非标双节琴台柜主要技术指标
(1)材料内外表面均进行喷塑处理。
(2)面板尺寸:484mm×534mm(12U)×2,相当于6块4U标准盘。
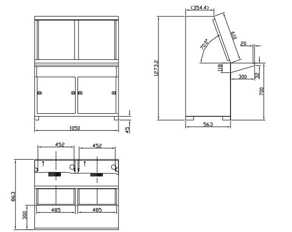
(3)外形尺寸:1050mm×863mm(包括台面)×1273mm。
三、LD-FB-1100非标双节琴台柜外形示意图
LD-FB-1100型双节琴台柜外形示意图如图

本文标签:
相关服务 / service
地区产品 / city
相关新闻 / news
- 可以不设置消防救援口的建筑[ 2025-07-31 ]
- 大暑「烤」验来袭,数据中心「怕热」更怕火 | 解读海湾数据中心消防解决方案[ 2025-07-29 ]
- 被滥用的双向疏散指示灯,到底怎么用才正确?[ 2025-07-24 ]
- 室内外消火栓从“型号密码”到“分工密码”,有哪些保命细节?[ 2025-07-17 ]
- 医院的贵重设备用房有哪些应设置气体灭火装置?[ 2025-07-07 ]
- 气体灭火系统的防静电接地[ 2025-07-07 ]
- 有关于消防安全评估的规范?[ 2025-06-26 ]
- 关于消火栓8301模块总报反馈[ 2025-06-26 ]
联系我们
- 电话:4006-598-119
- 邮箱:1334605518@qq.com
- 地址:苏州市常熟市黄河路275号
- 版权所有:智淼君安(江苏)消防工程技术有限公司
- 海湾消防 www.huifuxing.com 网站地图 (XML/TXT)
- ICP备案证书号:苏ICP备19022074号-10
苏公网安备32058102002167号
扫一扫,关注我们

服务热线:

<
<
<
<
